![]()
Το σύστημα EUROPA S-5500 ένα νέο
θερμομονωτικό πτυσσόμενο σύστημα που χρησιμοποιεί τη γραμμή
σχεδιασμού της EUROPA 5500 και παρέχει ευελιξία και
εργονομία στο χώρο με άριστα θερμο-ηχομονωτικά αποτελέσματα. ΤΕΧΝΙΚΗ ΠΕΡΙΓΡΑΦΗ
Ο συνδυασµός των νέων ελαστικών µε τα κατάλληλα θερµοδιακοπτόµενα
προφίλ, εξασφαλίζει τέλεια ηχοµόνωση και θερµοµόνωση, απόλυτη
στεγανότητα και άψογο αισθητικό αποτέλεσµα. ∆έχεται διπλούς ή
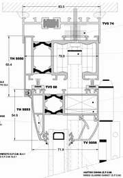
τριπλούς υαλοπίνακες, πάχους από ΤΕΧΝΙΚΑ ΧΑΡΑΚΤΗΡΙΣΤΙΚΑ ΣΥΣΤΗΜΑΤΟΣ Σειρά: EUROPA S.5500Υλικό: Al Mg Si-0.5 F22 Ανοχές διαστάσεων σύμφωνα με: EN 12020-2 Τύπος: Υδατοστεγής, Αεροστεγής Πάχος Κρυστάλλου: Ποικίλο, ανάλογα µε τα πηχάκια ΒΑΣΙΚΕΣ ∆ΙΑΣΤΑΣΕΙΣ ΤΟΥ ΣΥΣΤΗΜΑΤΟΣ Επάνω οδηγός: Πλάτος 79,9mm. Κάτω οδηγός: Ύψος 22mm. Φύλλο: Πλάτος 71,9mm και ύψος 54,9 & 63,8mm. Σκοτία µεταξύ των φύλλων: 10,5mm. Μέγιστη διάσταση πλάτους κάθε φύλλου: 85 - 90cm. ΧΡΗΣΗ: Το σύστηµα επιτρέπει την κατασκευή πτυσσόµενων θυρών και παραθύρων.
|
|
|

